AmantBrooklynUSA
Amant is an arts campus spread across three blocks in rapidly changing, industrial North Brooklyn. This cultural incubator functions both privately, and publicly, with artist studios, galleries, offices, storage, and a cafe.
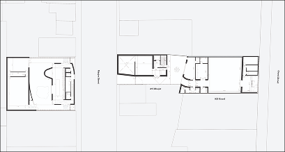
Rather than an inward-looking space isolated from its urban context, our collection of distributed volumes weaves itself into the fabric of the city. The mini-campus is a part of, benefits from, and contributes to the local community. Pockets of outdoor spaces, multiple entries, and openings cohabit the ground with other members of the neighborhood.
Lonti Ebers
BrooklynUSA
Cultural
1,950 m2 / 21,000 sf
Completed
Public routes channeled through large city blocks circulate the community in a new way. Courtyards and thoroughfares weave through and between existing buildings and make public functions sunk deep within accessible to all visitors beyond the more private spaces at the periphery.
Each of the four buildings in this collection contributes a gallery unique in proportion, size, light quality, and infrastructure. The porous campus remains flexible to curation as a group or individually, and facilitates programs ranging from technically demanding to large scale to intimate.
Materials render the buildings partly anonymous. Deeply textured form liners shape cast-in-plane concrete. Bricks rotate out of plane to catch a shadow. Galvanized steel bars toy with reflection and transparency. They nestle comfortably within their manufacturing and industrial storage context, and, up close, offer surprising tactilities, details, and depth that betray the familiar and the everyday.








Process
Drawings
Team
Florian Idenburg
Jing Liu
Kevin Lamyuktseung
Ted Baab
Pietro Pagliaro
Grace Lee
Lucia Sanchez-Ramirez
Álvaro Gómez-Sellés
Kristen Too
Christopher Riley
Alexandre Hamlyn
Regina Teng
Etienne Vallat
Marisa Musing
Tyler Mauri
Julie Perrone
Mario Serran
Diego Fernandez
John Chow
Collaborators
Architect of Record: Andrew Reyniak
Project Manager: Paratus Group
Structural: Silman Associates
MEP: CES Engineering
Plus Group Engineering
Lighting: Buro Happold
Engineering Cladding
Consultant: Simpson Gumpertz & Heger
Civil: Bohler Engineering
Expediter: J. Callahan Consulting, Inc.
Acoustics / AV / Security: Harvey Marshall Berling Associates
Concrete: Reginald Hough Associates
Geotechnical: Langan Engineering, PMT Laboratories, Inc
Landscape: Future Green
Graphics: Linked by Air
Photography: Naho Kubota, Iwan Baan
Related
