144 VanderbiltBrooklynUSA
This project represents the third installment (after 450 Warren and 9 Chapel) in a series aimed at transforming the conventional multifamily housing typology in New York.
Tankhouse
BrooklynUSA
Housing
8,300 m2 / 89,900 sf
Completed
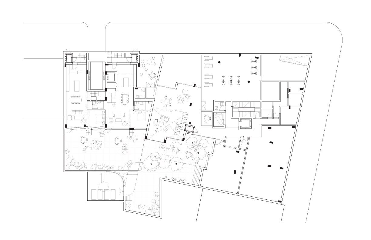
Its distinct corner location, straddling two zoning districts, heavily influences the building's structure and layout. On one side, it aligns with a row of townhouses, rising to four stories. On Myrtle Avenue, known for its commercial activity, the building expands to accommodate six residential floors above two commercial levels. The project explores these two contrasting urban experiences, creating a structure that acts as a porous barrier, housing a tranquil inner haven that contrasts with the vibrant street life.
The building is filled with greenery. Its staggered design offers a variety of communal outdoor spaces, each distinct in size and function, fostering collective activities. A verdant, secluded backyard extends the local streetscape, while a central courtyard is enlivened by surrounding movement. An elevated public square also provides a visible communal area that blends indoor and outdoor environments.
The units are designed to engage residents in multiple environments simultaneously. Every apartment enjoys access to both the lively street front and the more serene interior of the site. Residents also have proximity to shared outdoor spaces within the building, encouraging outdoor living, neighborly interactions, and engagement with the building's communal life.
The building's facade comprises precast concrete panels of varying shape, size, and finish. This diversity contributes to the building's unique and robust urban appearance, marking it as a bespoke architectural piece within New York's multifamily housing landscape.






Process
Model
Drawings
Team
Florian Idenburg
Jing Liu
Ted Baab
Jonathan Molloy
Melissa Gutiérrez Soto
Dohyun Lee
Collaborators
Local Architect - Kane AUD Architecture and Urban Design
Structural Engineer - Silman
MEP Engineer - ABS
Expediter - Vitacco
Envelope Engineer - Entuitive
Geotechnical Engineer - GES
Landscape Designer - Watson Salembier
Lighting Designer - ONP
Related
